work team awards news social contact
Menu
work team awards news social contact

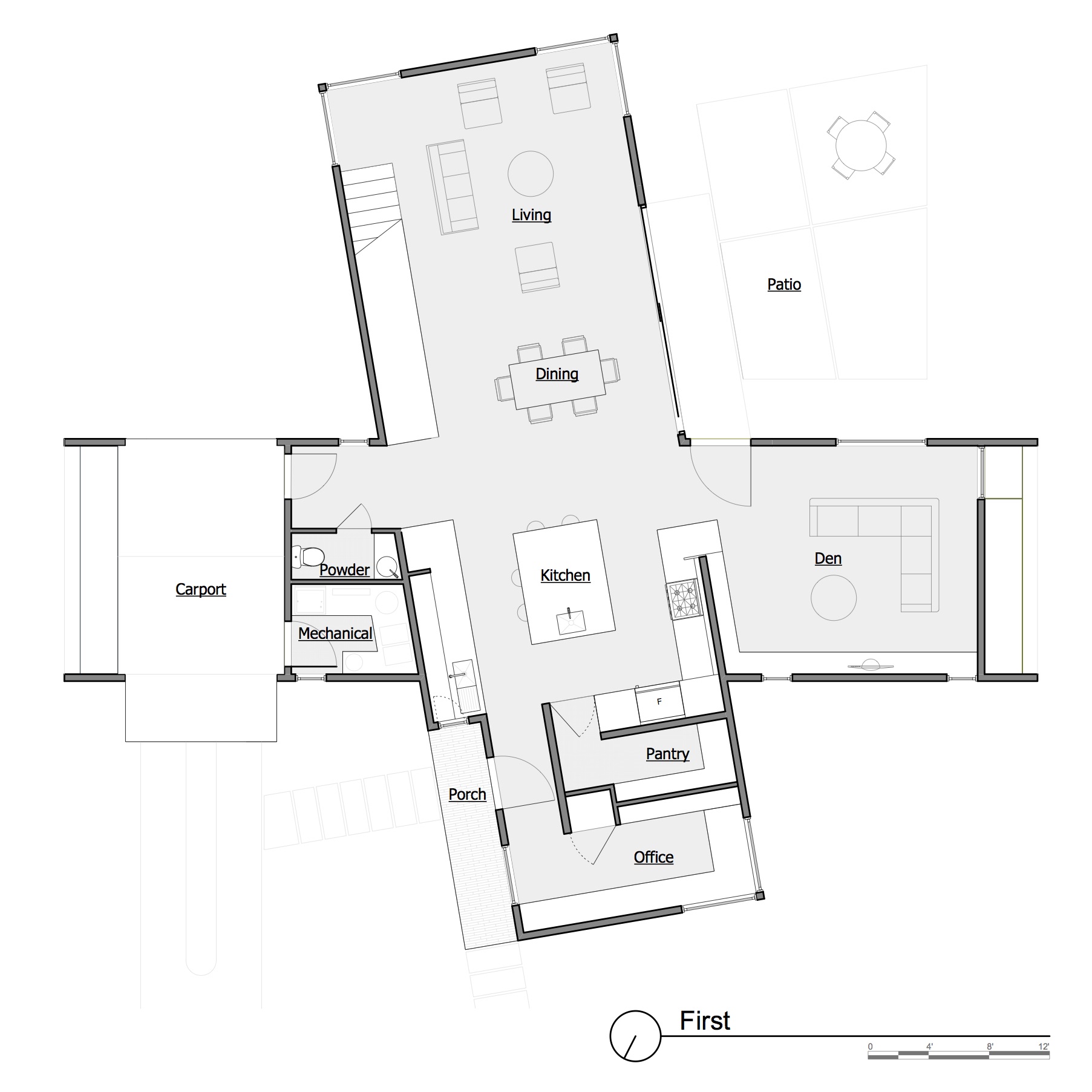
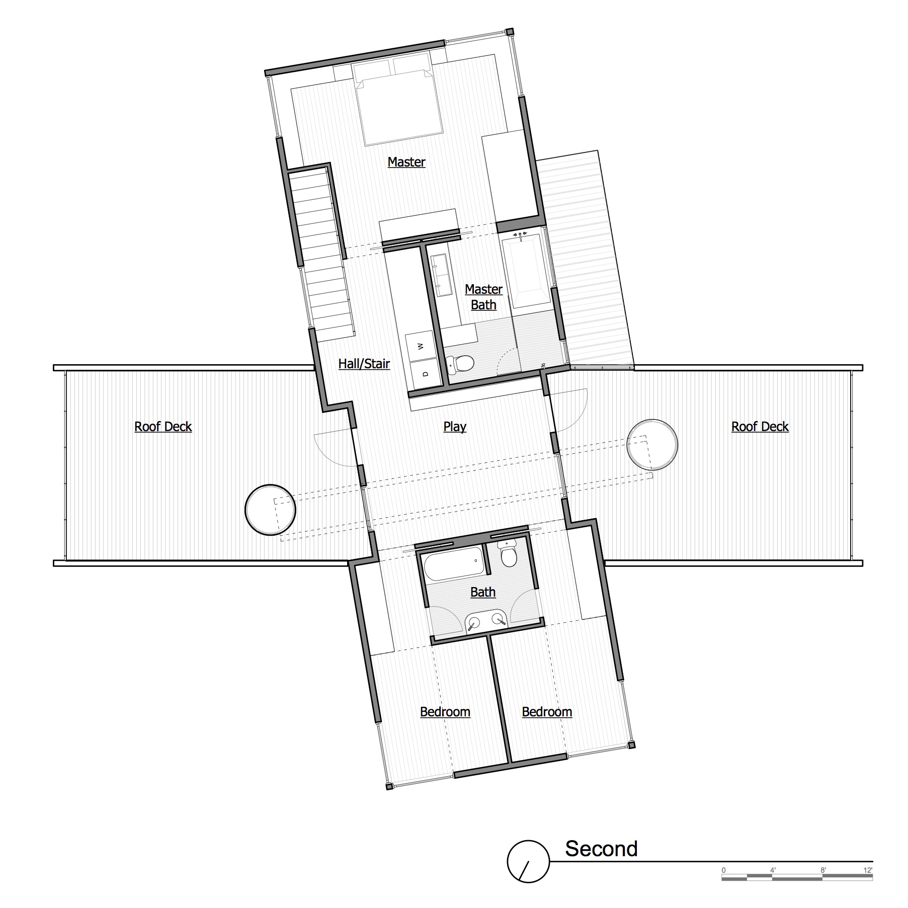
Graham

Modern infill house loaded with sustainability features

Project Completed

2008

  • All
  • Adaptive Reuse
  • Additions
  • Bar/Restaurant
  • Bathroom
  • Commercial
  • Historic Preservation
  • Kitchen
  • Modern
  • New House
  • Remodeling
  • Residential
  • Sustainability
  • Traditional
  • Upfit
  • Whole House Remodel
Mayview

Mayview

Tower

Tower

Hillcrest

Hillcrest

Saxapahaw River Mill

Saxapahaw River Mill

Vineyard

Vineyard

Banbury

Banbury

Graham

Graham

Spa Baths

Spa Baths

River Loft

River Loft

Garrett

Garrett

The Circle

The Circle

213 Fayetteville

213 Fayetteville

Hudson

Hudson

St. Mary’s

St. Mary’s

Aycock

Aycock

Bee Studio

Bee Studio

Dover Farm

Dover Farm

East Park

East Park

Eddy Pub

Eddy Pub

Haw River Farmhouse Ales

Haw River Farmhouse Ales

Leonard

Leonard

WPO

WPO

McCrodden

McCrodden

  • CONTACT
  •  919.829.0109
  •  info@redesign.build
  •  111 Old Williamson Road, Suite 101, Raleigh, NC 27603
  •  directions

Copyright © 2026 REdesign.build. All rights reserved. REdesign.build and REarchitecture operate as separate legal entities under North Carolina law.